Appartement à vendre 3 chambres à Mamer

  • Référence : APPT.01
  • Type : Appartement
  • Chambres : 3
  • Salle de bain : 1
  • Salle de douche : 1
  • Surface habitable : +/-122 m2
  • Prix de vente : 1 108 074 €
  • Disponibilité : 31/03/2027
Contact
Classe énergétique
A+
Classe d'isolation thermique B

Description

Découvrez « LUMINEA », une nouvelle résidence idéalement située à Mamer, offrant l'équilibre parfait entre l'accessibilité urbaine et une qualité de vie sereine, accès aisé aux infrastructures (transports en commun gratuits, écoles, et axes routiers A6), à seulement 9-10 kilomètres de Luxembourg ville.

Seulement 6 appartements d'exception sont disponibles, combinant un confort moderne inégalé et une performance énergétique de qualité. Un engagement pour l'avenir : Performance ABA +.

Faites le choix d'un habitat qui respecte la planète et votre budget ! Une garantie de très haute efficacité : Autonomie énergétique optimale :
- Triple vitrage
- Electricité verte grâce aux panneaux photovoltaïques
- Chauffage performant : système de pompe à chaleur pour un confort et des coûts de chauffage réduits.

Cette classe énergétique offre une isolation, une consommation et un impact environnemental minimal.

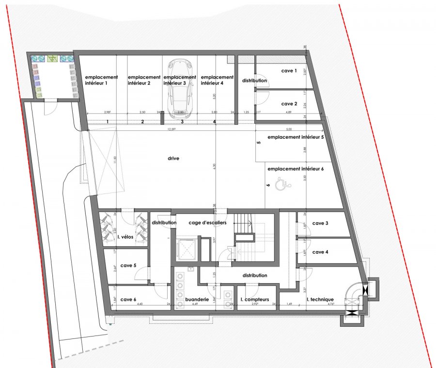
Des espaces de vie conçus pour le bien être : Stationnement et rangement inclus : Chaque logement bénéficie de son emplacement intérieur privatif et d'une cave individuelle.

Exceptionnel au rez de chaussée :
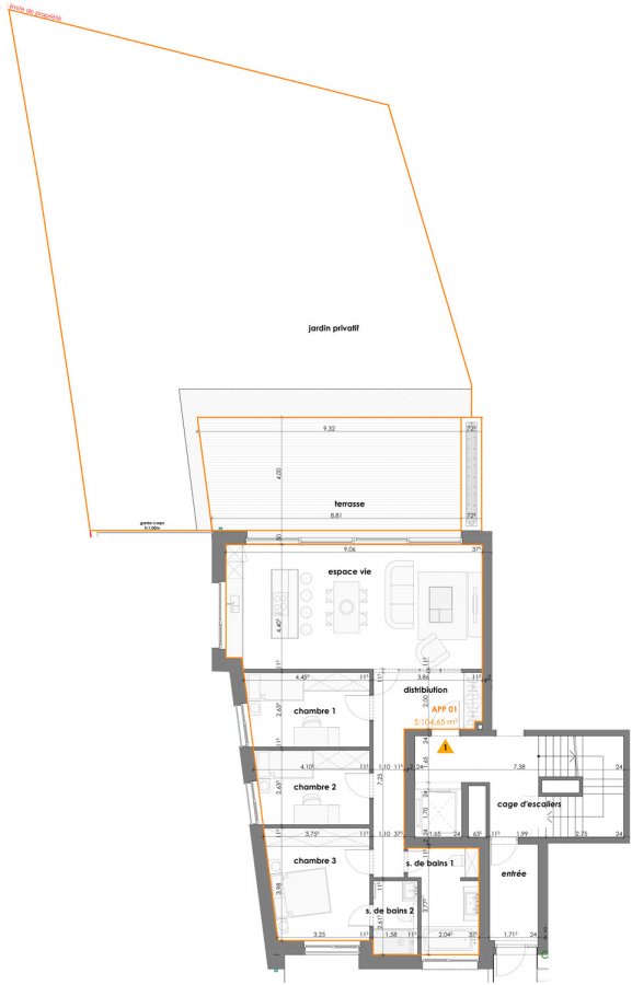
2 Appartements de 3 chambres dont une chambre parentale avec sa salle de douche, tous deux bénéficient d'une grande terrasse et d'un jardin privé, un véritable prolongement dans votre espace de vie pour profiter des beaux jours. Parfait pour les familles !!

1er étage :
2 appartements de 3 chambres dont une avec salle de douche intégrée avec terrasses, de beaux espaces de vies, à découvrir !!

2ème étage :
2 Penthouses exclusifs au dernier étage.

L'un est conçu aux normes pour personne à mobilité réduite (PMR), garantissant accessibilité et confort maximal. L'autre, un modèle d'optimisation, doté de deux chambres avec chacune leur propre salle de bains privative (en-suite). Tous deux sublimés par les terrasses avant et arrière pour un ensoleillement idéal.

SURFACES DETAILLEES DE L'APPT.01 :
Surface habitable : 104.65 m2
Surface terrasse : 36.25 m2 (12.88 m2 calculé dans le prix de vente)
Surface cave : 10.20 m2 (4.72 m2 calculé dans le prix de vente)
Jardin : 188.73 m2 privatif

1 emplacement intérieur inclus
1 emplacement extérieur inclus


Les prix affichés sont calculés sur base de la TVA 3 %, sous réserve de l'acceptation de votre dossier, auprès de l'administration de l'enregistrement de TVA.

Infos : 621 19 49 89. Documentation complète sur rendez-vous ! Sans engagement!

Caractéristiques

Intérieur

CuisineOui
Cuisine ouverteOui
Nb de parking interne1

Sanitaires

Salle de bain1
Salle de douche1

Extérieur

Terrasse36.25 m²
Jardin188 m²
Nb de parking externe1

Autres

AscenseurOui
CaveOui
BuanderieOui

Chauffage / climatisation

Pompe à chaleurOui
Panneaux solairesOui

Contactez-nous

+352 52 52 11
+352 621.19.49.89

Vous
 
Champs obligatoire
 
 
En envoyant ce formulaire, j’accepte que mes informations soient enregistrées puis utilisées par notre agence afin de répondre à ma demande. Consultez notre pour connaître vos droits.
 

Localisation

4 Rue de la Libération, L-8245, Mamer